產品詳情
鄭州恒源建機公司的60噸水泥倉,分為60噸立式水泥倉,60噸臥式水泥倉兩種,適合儲存糧食、水泥、粉煤灰等各種散裝物料,用戶可以根據自己的實際需求進行選型。


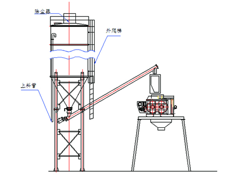
水泥罐是一種封閉式的儲存散裝物料的罐體,適合儲存糧食、水泥、粉煤灰等各種散裝物料,罐體上裝有料位系統,能夠顯示物料的位置和多少,破洞裝置可以解除物料沉積太久而造成的結實。水泥倉和螺旋輸送泵配合使用能夠把物料輸送到各個位置,該罐體安裝方便,安全可靠是各種攪拌站的理想散裝水泥倉儲存罐。

水泥罐由以下部分組成:倉體鋼結構部分、爬梯、護欄、上料管、除塵器、壓力安全閥、高低料位計、卸料閥等。水泥罐為圓柱形結構,底部由四條圓管支腿支撐整個倉體,整倉全部為鋼結構形式,焊接而成;頂部設有除塵器及壓力安全閥。

60噸散裝水泥倉購前須知
問題一:散裝水泥倉都有哪些規格?
恒源:散裝水泥倉一般在國內及國外使用,恒源生產的散裝水泥倉有30T-200T不等。
問題二:60噸散裝水泥倉價格是多少?
恒源:不同型號價格也不同。詳情可以撥打電話來進行咨詢!
問題三:60噸散裝水泥罐質保多久?
恒源:恒源公司所生產的設備均質保一年(易損件、人為除外)。
技術參數
| 整體水泥型號 | 罐體不含支腿高度 | 罐體直徑 | 鋼板厚度 | 重量 | 支腿直徑 |
| 50 | 8.5米 | 3米 | 3-4-5 | 1.9噸 | 直徑219 |
| 60 | 9.5米 | 3米 | 3-4-5 | 2.2噸 | 直徑219 |
| 80 | 11米 | 3米 | 3-4-5 | 3.6噸 | 直徑219 |
| 100 | 12.5米 | 3米 | 4-5-6 | 4.35噸 | 直徑219 |
| 150 | 16.5米 | 3.2米 | 4-5-6 | 5.6噸 | 直徑273 |
|
片裝水泥罐 型號 |
罐體不含支腿高度 | 罐體直徑 | 鋼板厚度 | 重量 | 支腿直徑 |
| 100 | 12.5米 | 3米 | 4-5-6 | 4.9噸 | 直徑219 |
| 150 | 16.5米 | 3.2米 | 4-5-6 | 6.7噸 | 直徑273 |
| 200 | 12.84米 | 4.5米 | 4-5-6 | 11.8噸 | 直徑325 |
| 300 | 13.40 | 5.5米 | 6-6-8 | 15.5噸 | 直徑377 |
| 500 | 15.30 | 7米 | 6-8-8 | 23.8噸 | 直徑377 |
如果您想了解60噸水泥倉投資多少錢?請聯系我們,給您發該設備的詳細配置單和價格,電話18838251111











